Renovierung Zimmer 2

27.02.2022
Zimmer komplett mit Armierung
12.02.2022
Abschluß der Stemmarbeiten

To do ...

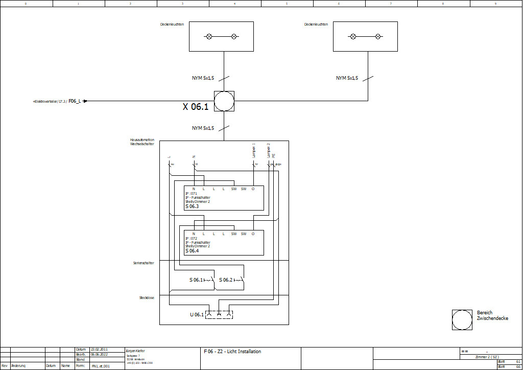
Elektroinstallationen
Licht ( 06.06.2022 )
Rolladen ( 29.12.2021 )
Decke
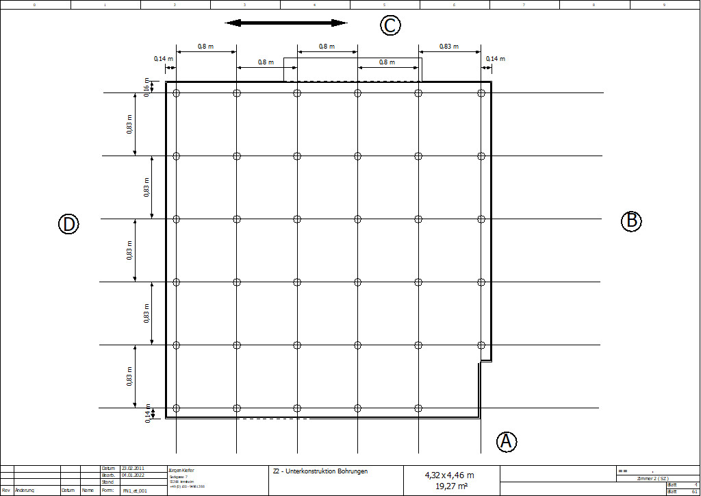
Zimmer Fläche
Bohrungen
Unterkonstruktion
446 cm ( Seite D ) / 20 cm ( Paneelenbreite ) = 22 Reihen

21 x 20 cm ( Paneelenbreite ) = 420 cm

26 cm ( Rest ) / 2 = 13 cm ( Zuschnitt Paneelenbreite am Anfang & Ende )

Daraus resultieren 23 Reihen ( 432 cm ) mit jeweils 4 Paneelen ( 3 x 125 cm + 2 x 28,5 cm bzw. 2 x 125 cm + 2 x 91 cm ) = 92 Paneelen
Zimmertür
Zimmer 2
( mm )
Wandöffnung
( Breite )
880
Höhe
( ab Estrich )
2050
Mauer
( Wandstärke )
400
Bildergalerie
error: Inhalt ist geschützt !!