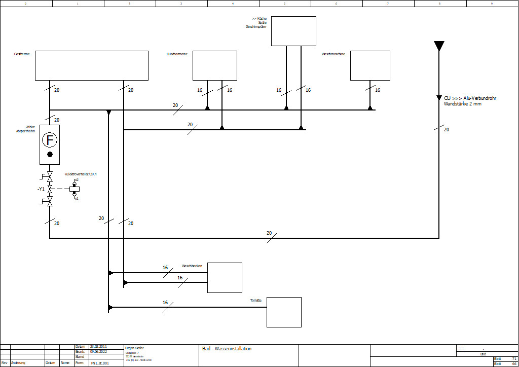
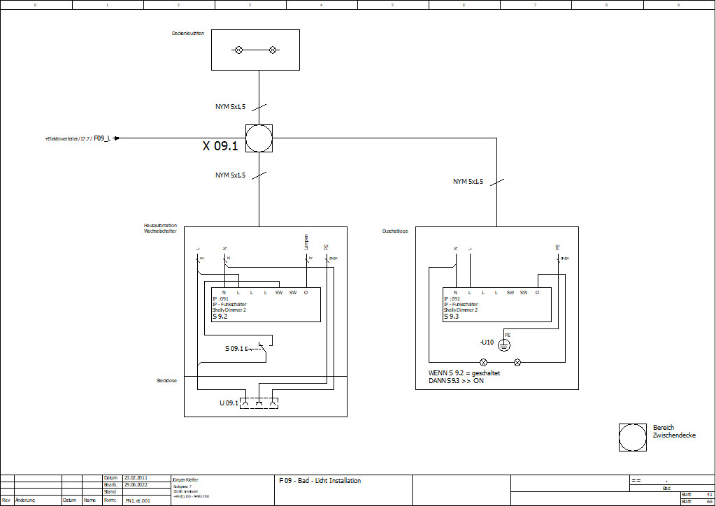
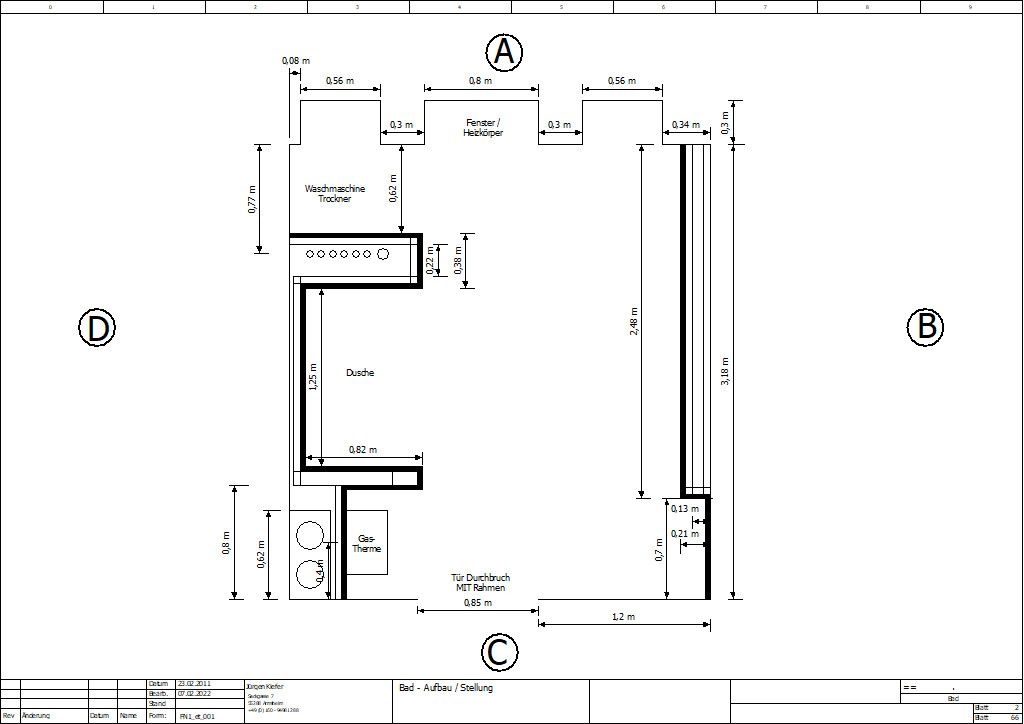
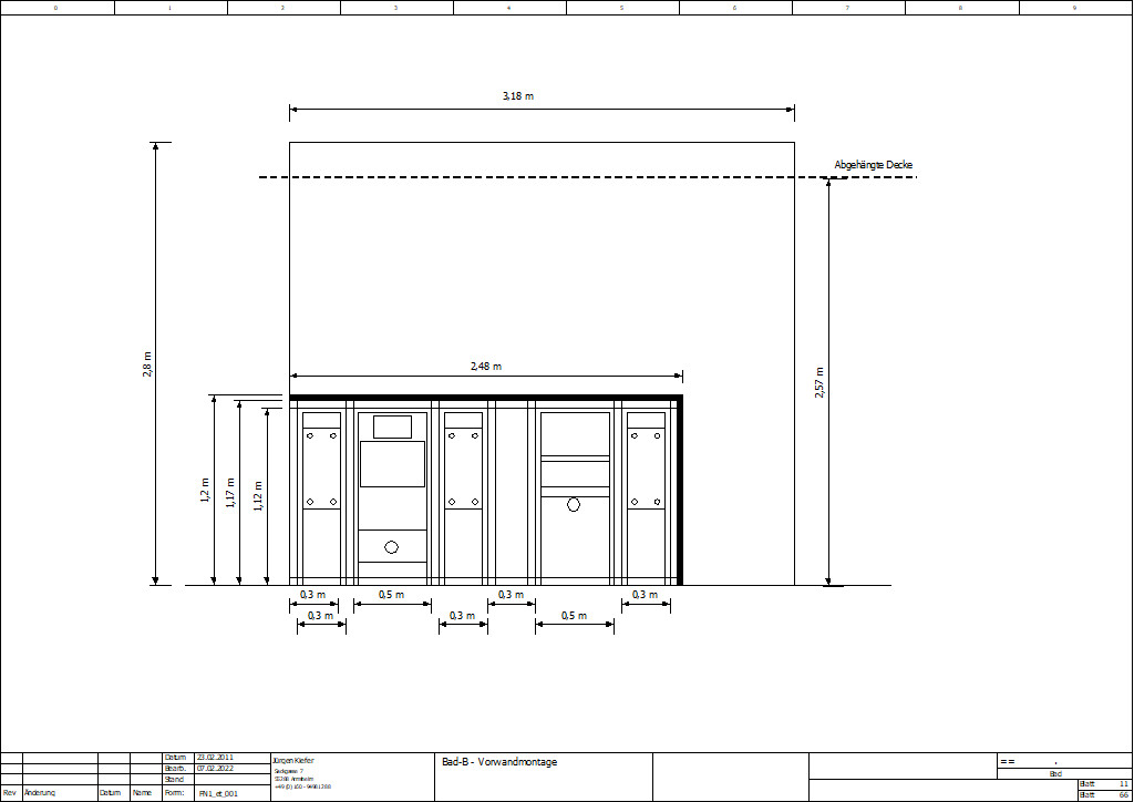
Renovierung Bad / WC

26.06.2022
...
2.Wand armiert
11.06.2022
...
Alter WC demontiert
06.06.2022
...
1.Wand armiert
21.11.2021
...
Kaminrohranschluß am Schornstein gedreht

To do ...

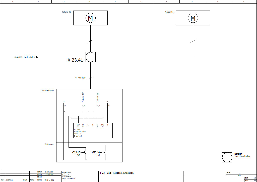
Elektroinstallationen
Licht ( 06.06.2022 )
Rolladen ( 25.03.2022 )
Zimmertür
Bad / WC
( mm )
Wandöffnung
( Breite )
750
Höhe
( ab Estrich )
2050
Mauer
( Wandstärke )
130
Bildergalerie
Trockenbau
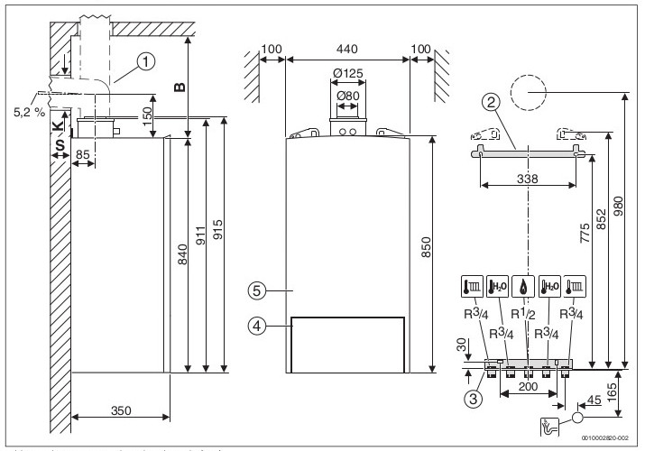
Trockenbau Gastherme
Trockenbau WC / Waschbecken
Gas - Zuleitung
Zuleitung in der WE
Keller Hadsejusokovic
Keller Hadsejusokovic
Abfluss Dusche
Abfluss in der WE
Keller Hadsejusokovic
Keller Hadsejusokovic
Abfluss WC
Abfluss in der WE
Keller Hadsejusokovic
Keller Hadsejusokovic
Wasser
Wandanschluß Waschbecken
todo ... Informationen
error: Inhalt ist geschützt !!